



この記事でわかること
- コスモ城東野江ロイヤルフォルムを家族で住む前提で持つ価値
- コスモ城東野江ロイヤルフォルム購入後のリアルな毎月コスト
- 立地の強さに対して価格が見合うかどうか
- 大阪オジ家計(年収800万家計)で成立するかの目線
- 年収別の無理ライン
- 大阪オジの最終判断
大阪市城東区でマンションを探していると、「立地はいいけど価格が高い」と感じる物件に出会います。コスモ城東野江ロイヤルフォルムもその一つです。
野江・蒲生四丁目・京橋が使える利便性の高い立地。
一方で価格は約5,000万円、築27年。
この記事では、コスモ城東野江ロイヤルフォルムを「家計PL」の視点で整理し、
・本当に買って大丈夫なのか
・年収いくらなら無理がないのか
・立地の価値は価格に見合うのか
を大阪オジ目線でリアルに解説します。
コスモ城東野江ロイヤルフォルム 物件概要
まずは、不動産ポータルサイトに載っている基本的な情報を見てみましょう。
| 物件名 | コスモ城東野江ロイヤルフォルム |
|---|---|
| 価格 | 4,998万円 |
| 間取り | 3LDK(LDK16.4帖・洋室4.5帖・洋室5帖・洋室6.2帖) |
| 専有面積 | 70.48㎡(壁心) |
| バルコニー | 17.64㎡ |
| 所在階 | 4階 / 14階建 |
| 築年月 | 2000年1月(築27年) |
| 所在地 | 大阪府大阪市城東区野江1丁目15-5 |
| 交通 | 京阪本線 野江駅 徒歩9分 おおさか東線 JR野江駅 徒歩10分 Osaka Metro今里筋線 蒲生四丁目駅 徒歩9分 Osaka Metro長堀鶴見緑地線 蒲生四丁目駅 徒歩10分 JR大阪環状線 京橋駅 徒歩14分 Osaka Metro谷町線 野江内代駅 徒歩18分 |
| 総戸数 | 66戸 |
| 管理費 | 6,600円/月 |
| 修繕積立金 | 10,900円/月 |
| 主要採光面 | 南 |
| 建物構造 | SRC(鉄骨鉄筋コンクリート) |
| 用途地域 | 準工業地域 |
| 管理会社 | 大和ライフネクスト株式会社 |
| その他 | 2026年6月上旬フルリフォーム完了予定 |
※2026年4月時点の情報です。
コスモ城東野江ロイヤルフォルム 第一印象
価格はいったん置いておいて、大阪オジ的に第一印象は、
「交通の選択肢が多く、家族で長く住む前提ならかなり現実感のある物件」です。
野江駅、JR野江駅、蒲生四丁目駅、さらに京橋駅まで視野に入る立地は、日々の暮らしや通勤のしやすさという意味でかなり強いです。通勤先が一つに固定されていない家庭や、夫婦で使う路線が違う場合には、この交通網の広さがじわじわ効いてきます。
専有面積70.48㎡、3LDK、南向きという条件も、家族で住む前提なら十分検討ラインです。LDK16.4帖が確保されている点も、数字以上に住みやすさにつながりそうです。
一方で気になるのは、築27年で約5,000万円という価格帯です。フルリフォーム予定とはいえ、建物自体の築年数は変わりません。立地の強さが価格に反映されている物件やな、というのが率直な印象です。
管理費6,600円/月、修繕積立金10,900円/月は、築27年・66戸規模としては極端に重い水準には見えません。ただし、今後の修繕計画や積立金の改定余地はしっかり確認したいところです。フルリフォームの綺麗さだけに引っ張られず、「建物全体の管理」がどうかまで見たいと大阪オジは思いました。
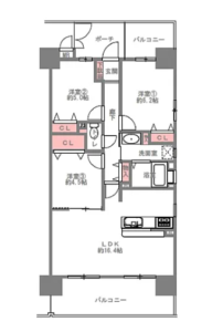
コスモ城東野江ロイヤルフォルム間取りの分析
2026年4月時点で売りに出ているコスモ城東野江ロイヤルフォルムの間取り70.48㎡・3LDKを見てみましょう。

コスモ城東野江ロイヤルフォルム間取り
大阪オジ的に、この間取りの優れポイントをざっと上げるとこんな感じ。
- LDK16.4帖で、家族が集まる空間をしっかり確保している
- 洋室が3部屋あり、子ども部屋・主寝室・仕事部屋など使い分けしやすい
- 南向きで、日当たり面の期待が持ちやすい
- 70㎡台前半でも、リビングを削りすぎずバランスよくまとまっている
- フルリフォーム予定なので、住み始めの満足度を上げやすい
しいて考慮すべきポイントをあげるなら、
- 70㎡台前半なので、4人家族で荷物が多い場合は広さに余裕たっぷりとは言いにくい
- 4.5帖の洋室は使い方を工夫しないと手狭に感じる可能性がある
- フルリフォームで室内は整っても、築27年の建物全体の状態確認は必要
こんな感じです。
コスモ城東野江ロイヤルフォルム立地・生活動線の強み
この物件の大きな特徴は、交通の選択肢がかなり多いことです。
野江駅徒歩9分、JR野江駅徒歩10分、蒲生四丁目駅徒歩9〜10分、さらに京橋駅も徒歩14分圏。数字だけ見れば「駅徒歩9〜10分」ですが、使える路線数まで含めると、生活の自由度はかなり高いです。
通勤だけでなく、休日の移動、家族それぞれの行動範囲を考えた時にも、この交通条件は強みになります。
一方で、圧倒的な駅近というわけではありません。徒歩5分以内のようなわかりやすい強さではないですが、「複数路線が使えることで生活全体が回しやすい」というタイプの立地です。
駅距離だけで判断するより、毎日の通勤・買い物・送り迎え・休日移動まで含めて、この立地が生活にどう効くかで見たい物件です。
コスモ城東野江ロイヤルフォルム月額住居コスト
| 項目 | 金額 |
|---|---|
| 住宅ローン | 約135,500円 |
| 管理費 | 6,600円 |
| 修繕積立金 | 10,900円 |
| 固定資産税 | 約12,000円 |
| 保険 | 約1,000円 |
| 合計 | 約166,000円 |
※住宅ローンは金利0.75%で計算
※固定資産税・火災保険は概算
コスモ城東野江ロイヤルフォルム年収目安

家計PLで見るとどうか

この物件は、「立地の便利さを買う代わりに、毎月の固定費はしっかり乗る」タイプです。
築年数だけ見れば新しさで押せる物件ではありません。広さも70㎡台前半で、飛び抜けて余裕があるわけではない。にもかかわらず約5,000万円に乗っているのは、交通利便性と城東区での生活のしやすさが価格に反映されているからです。
ただ、家計PLで見ると、16万円台後半の固定費は決して軽くありません。ここに教育費やレジャー費を乗せたとき、生活の余白がどれだけ残るか。
この物件は
・年収800万円 → やや厳しい
・年収900万円 → 現実ライン
・年収1000万円以上 → 安定
つまり
「買える」は800万円前後
「安心して持てる」は900万円以上 と判断できます。
大阪オジの家計は年収800万円世帯。現状の大阪オジ家計では、立地の魅力はかなり感じる一方で、少し慎重に見たい物件やなという印象です。
大阪オジならこうする
この物件は、立地の使い勝手がかなり良いです。ただし、それは“便利”という意味であって、“誰にでも合う”という意味ではありません。
大阪オジなら、まず自分の家計PLを出して、この物件の固定費を乗せても生活が崩れないかを確認します。
もし少しでも重たいと感じるなら、駅距離を少し伸ばすか、価格帯を4,000万円台半ばまで落とす。そうするだけで、月額はかなり軽くなります。
立地にお金を払う価値があると感じるなら前向きに検討していい。ただ、住んだ後の自由度がなくなるなら、今はまだそのタイミングではないと思います。
まとめ
コスモ城東野江ロイヤルフォルムは、交通利便性が強く、家族で住む現実感もある物件です。
ただし、築27年で約5,000万円、月額約16.6万円という固定費は軽くありません。
だからこそ、「買えるか」「見た目がきれいか」ではなく「続けられるか」。この視点で判断することが、後悔しないためのポイントです。


コメント